Sloterkade 169 2 1059 EB Amsterdam
€ 425.000 k.k.

Vraagprijs€ 425.000 k.k.
TypeBovenwoning
Oppervlakte47m²
Slaapkamers1

Omschrijving

Goed ingedeeld tweekamerappartement van 47m² met een prettig balkon en magnifiek vrij uitzicht aan de voorzijde over de Schinkel. Het pand is gelegen op eigen grond in de bruisende Hoofddorppleinbuurt direct aan de Schinkel in stadsdeel Zuid. Bijzonder te vermelden is de fraaie erker met glas in lood bovenramen, de originele schouw en de wandlijsten in woon- en slaapkamer. Dit voormalige huurappartement biedt uitstekende mogelijkheden om naar eigen smaak te moderniseren en een topwoning te realiseren op een zeer gewilde locatie in Amsterdam-Zuid.

De verkoop geschiedt via een projectnotaris waar tevens de splitsing plaats zal vinden. De VvE zal spoedig worden opgericht en de servicekosten dienen nog te worden vastgesteld. Tevens is het opstellen van een meerjarenonderhoudsplan uitgezet.

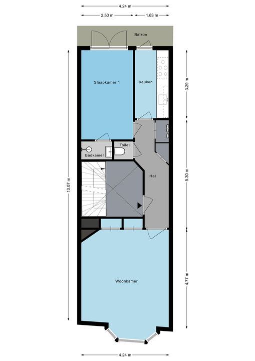
INDELING
Via het gemeenschappelijke trappenhuis bereik je de entree op de tweede verdieping. De centrale hal geeft toegang tot nagenoeg alle ruimtes.

Aan de voorzijde is de charmante woonkamer gelegen met fantastisch zicht over de Schinkel. Met de geboden oppervlakte is hier plaats voor zowel een zit- als eetgedeelte. Tevens beschikt de woonkamer over twee goede inbouwkasten.

De dichte keuken ligt aan de achterzijde, is voorzien van de c.v. ketel en geeft toegang tot het woningbreed balkon van 4,5m².

Naast de keuken is de prettige slaapkamer gesitueerd, tevens met toegang tot het balkon middels openslaande deuren en voorzien van een praktische inbouwkast. Vanuit de slaapkamer is de badkamer te bereiken. Deze is uitgevoerd met een donkere vloertegel en een geheel wit betegelde wand met zwarte bies. Voorts is de badkamer voorzien van een douche en wastafel. Vanuit de hal is het separate toilet toegankelijk waartegenover nog twee inbouwkasten zijn gesitueerd.

LIGGING & BEREIKBAARHEID
De woning ligt op een toplocatie aan de Schinkel en midden in de levendige Hoofddorppleinbuurt. De buurt zelf biedt tal van leuke, trendy cafés, terrassen en restaurants. De woning grenst direct aan de Zeilstraat, de Amstelveenseweg en de Koninginneweg met aansluitend enerzijds de Stadionweg en Apollobuurt en anderzijds het Museumkwartier. Genoemde straten hebben een ruim aanbod aan winkels voor de dagelijkse boodschappen maar ook diverse speciaalzaken. Het Vondelpark is tevens nabij gelegen evenals de bruisende Overtoom welke weer aansluit op de binnenstad. Voorzieningen zoals scholen en sportfaciliteiten bevinden zich in de directe omgeving. Openbaar vervoer stopt praktisch voor de deur en er zijn diverse uitvalswegen nabij.

PARKEREN
Op de openbare weg geldt betaald parkeren en parkeren middels een vergunning systeem. Volgens informatie van de website van gemeente Amsterdam is er een wachttijd voor het verkrijgen van een parkeervergunning(wachtlijstgegevens per 4 maart 2026, vergunningsgebied Zuid 2.3).

BIJZONDERHEDEN
Charmant jaren ’30 appartement van 47m²;
Diverse originele details aanwezig;
Lichte woonkamer met erker en zicht op de Schinkel;
Balkon aan de achterzijde;
Gelegen op eigen grond;
Verkoop onder voorbehoud van splitsing;
Projectnotaris: WestNova;
Oplevering kan spoedig.

DISCLAIMER
Deze informatie is door ons met de nodige zorgvuldigheid samengesteld. Onzerzijds wordt echter geen enkele aansprakelijkheid aanvaard voor enige onvolledigheid, onjuistheid of anderszins, dan wel de gevolgen daarvan. Alle opgegeven maten en oppervlakten zijn indicatief. Koper heeft zijn eigen onderzoekplicht naar alle zaken die voor hem of haar van belang zijn. Met betrekking tot deze woning is de makelaar adviseur van verkoper. Wij adviseren u een deskundige (NVM-)makelaar in te schakelen die u begeleidt bij het aankoopproces. Indien u specifieke wensen heeft omtrent de woning, adviseren wij u deze tijdig kenbaar te maken aan uw aankopend makelaar en hiernaar zelfstandig onderzoek te (laten) doen. Indien u geen deskundige vertegenwoordiger inschakelt, acht u zich volgens de wet deskundig genoeg om alle zaken die van belang zijn te kunnen overzien. Van toepassing zijn de NVM voorwaarden.

NENCLAUSULE
De gebruiksoppervlakte is berekend conform de branche vastgestelde NEN 2580-norm. De oppervlakte kan derhalve afwijken van vergelijkbare panden en/of oude referenties. Dit heeft vooral te maken met deze (nieuwe) rekenmethode. Koper verklaart voldoende te zijn geïnformeerd over de hiervoor bedoelde normering. Verkoper en diens makelaar doen hun uiterste best de juiste oppervlakte en inhoud te berekenen aan de hand van eigen metingen en dit zoveel mogelijk te ondersteunen door het plaatsen van plattegronden met maatvoering. Mocht de maatvoering onverhoopt niet (volledig) overeenkomstig de normering zijn vastgesteld, wordt dit door koper aanvaard. Koper is voldoende in de gelegenheid gesteld de maatvoering zelf te (laten) controleren. Verschillen in de opgegeven maat en grootte geven geen der partijen enig recht, zo ook niet op aanpassing van de koopsom. Verkoper en diens makelaar aanvaarden geen enkele aansprakelijkheid in deze.

REGULERING GEMEENTE, ZELFBEWONING
Per 01-01-2022 is de wet opkoopbescherming van kracht hetgeen betekent dat gemeenten een zelfbewoningsplicht kunnen opleggen bij aankoop. Voor gedetailleerde informatie hierover verwijzen wij u naar de betreffende gemeente.

Plattegronden

Kenmerken

Overdracht

Prijs
€ 425.000 k.k.
Status
Beschikbaar
Oplevering
In overleg

Bouw

Soort appartement
Bovenwoning, Appartement
Soort bouw
Bestaande bouw
Bouwjaar
1935
Onderhoud binnen
Goed
Onderhoud buiten
Goed

Oppervlakten en inhoud

Woonoppervlakte
47m²
Inhoud
123m³

Indeling

Aantal kamers
2
Aantal slaapkamers
1
Aantal badkamers
1
Aantal verdiepingen
1

Energie

Energielabel
C
Isolatie
Dubbel glas
Warm water
C.V.-ketel
Verwarming
C.V.-ketel

Buitenruimte

Ligging
waterfront, In woonwijk, Vrij uitzicht
Balkon
Ja

Garage

Locatie

[ { "address": "Sloterkade 169", "zipCode": "1059 EB", "city": "Amsterdam", "lat": 52.3495605, "lng": 4.8515886, "heading": 0, "pitch": 0 } ]

Contact opnemen

Uw bericht is naar ons verzonden. Wij nemen zo snel mogelijk contact met je op.

Sorry, we kunnen helaas niet met zekerheid vaststellen of je een mens of een geautomatiseerde bot/spammer bent. Hierdoor kunnen we het formulier dat je hebt ingevuld niet verzenden. Probeer het opnieuw of neem direct contact op met de makelaar via e-mail.

Er is iets mis gegaan met het versturen van het formulier.
Controleer of jeu alle velden (goed) heeft ingevoerd en probeer het nog een keer.

recaptcha
reCAPTCHA
PrivacyTerms

Vergelijkbare woningen

Amsterdam Da Costastraat 49 2
€ 425.000 k.k.
Amsterdam Gouden Leeuw 328
€ 365.000 k.k.
Amsterdam Fleerde 203
€ 365.000 k.k.