Carnapstraat 223 1062 KZ Amsterdam
€ 795.000 k.k.

Vraagprijs€ 795.000 k.k.
TypeDubbel benedenhuis
Oppervlakte126m²
Slaapkamers3

Omschrijving

Exceptioneel licht, modern en speels ingedeeld zijn de kernwoorden van dit dubbele benedenhuis van 126m² (bvo 143m²). Het benedenhuis beschikt over een fantastische living met een hoog plafond van 3.71m en een industriële ‘feel’, drie goede slaapkamers, twee badkamers en een gezellig terras van 13m². Daarbij behoort de woning nog een separate berging toe evenals een eigen parkeerplaats op afgesloten terrein. De erfpacht is afgekocht t/m 30-6-2046 waarna de canon is vastgeklikt. Het pand is gunstig gelegen in een kindvriendelijke en rustige buurt aan het Wilhelminapark in Amsterdam West en op een steenworp afstand van de bruisende Hoofddorppleinbuurt met het Rembrandtpark en het Vondelpark op korte fietsafstand. Door de gunstige en centrale ligging is dit een erg populaire buurt. In de directe omgeving zijn diverse winkelvoorzieningen voor de dagelijkse boodschappen te vinden evenals gezellige horecagelegenheden.

De VvE wordt professioneel beheerd en de maandelijkse kosten bedragen €177,15 voor zowel de woning, berging als parkeerplaats.

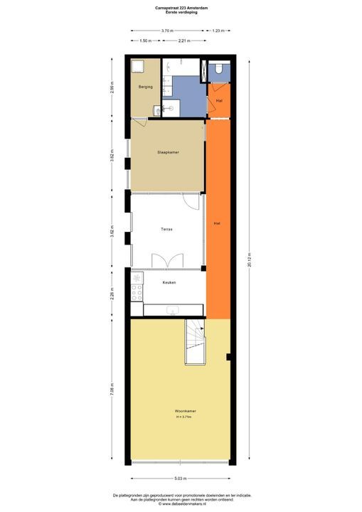
INDELING
De eigen entree komt uit in een royale hal met een ruime garderobe en plaats voor een buggy/kinderfietsen, indien benodigd. De hal is uitgevoerd met een opvallende tegelvloer en beschikt over de meterkast en een gestoffeerde trap naar bovengelegen woonlaag waarbij je direct uitkomt in de imposante living. Deze verdieping is exceptioneel licht gezien de hoge plafonds en ramen maar ook zeker door het terras, gelegen in met midden van de woonlaag met aan drie zijdes plafondhoge raampartijen. Aan de voorzijde is het zitgedeelte gerealiseerd wat vloeiend overloopt in de aansluitende woonkeuken.

De keuken heeft een L-opstelling en is uitgevoerd met mat witte kasten en een elegante RVS greep, in combinatie met een donker natuurstenen werkblad. Voorts is de keuken voorzien van diverse inbouwapparatuur met in het bijzonder vermeld het 6-pits “Smeg” fornuis. Openslaande deuren leiden naar het beschutgelegen terras van 13m² met ochtend en middagzon. Hier kun je heerlijk ontspannen na een drukke werkdag.

Een open gang leidt naar de achterzijde van de verdieping. Hier bevinden zich de eerste slaapkamer en de sanitaire ruimtes. Deze slaapkamer is momenteel in gebruik als werkkamer en grenst aan voornoemd dakterras. Tevens is deze kamer voorzien van een diepe berging waarin de wasmachine/drogeraansluitingen en c.v. ketel zijn geplaatst

Het separate toilet bevindt zich naast de badkamer, beide zijn uitgevoerd in een antraciet/wit/zwarte kleurstelling. Deze badkamer is ruim van formaat en is voorzien van een ligbad, inloopdouche en een breed wit wastafelmeubel met twee kranen en een verwarmde spiegel. Prettig detail zijn de extra bergkasten boven het ligbad.

Op de begane grond liggen de overige twee slaapkamers. Aan de voorzijde ligt een (kinder) slaapkamer, de hoofdslaapkamer is aan de zijkant van het gebouw gesitueerd. Deze ruime slaapkamer biedt plaats voor een tweepersoonsbed en een grote kledingkastenwand. Via de loft/schuifdeur is de en-suite badkamer te bereiken, uitgevoerd met een aardteint vloertegel en een licht gemêleerde wandtegel. Deze badkamer is voorzien van een inloopdouche, wastafelmeubeltje en zwevend toilet.

Op de keuken en hal na is het gehele benedenhuis voorzien van een fraaie eikenhouten vloer. De keuken is uitgevoerd met een antraciet vloertegel.

Bij de woning behoort nog een separate box, bereikbaar via de straat evenals een eigen parkeerplaats op afgesloten terrein.

LIGGING EN BEREIKBAARHEID
Deze woning is perfect gelegen, net buiten de ring en daarmee aan de rand van Amsterdam Zuid en Nieuw-West; een gebied dat volop in ontwikkeling is. Het pand bevindt zich nabij tal van winkels, cafés en restaurants aan o.a. het Hoofddorpplein en de Amstelveenseweg. Bar LELY, The Corner Bakery, Lokaal van de Stad en Poppy's zijn enkele horecagelegenheden op slechts 5 minuten loopafstand. Ietsje verder gelegen vindt men café Van Mechelen, Gent aan de Schinkel en Cafenation. Bijzonder prettig is de recent geopende AH in het Berghaus Plaza op twee minuten loopafstand, waar op korte termijn ook een sportschool (TrainMore) en verschillende horecagelegenheden zullen openen. Ook bevindt de woning zich door de gunstige ligging in het voorrangsgebied van populaire basisscholen zoals de Notenkraker en de Zevende Montessorischool (in het Rembrandtpark). Het Vondelpark en Rembrandtpark bereik je binnen enkele minuten en de Kinkerstraat/Overtoom/Foodhallen/Ten Kate markt in Oud-West liggen op slechts 10 minuten fietsen. Recreëren kan dichtbij in het Rembrandtpark en op en rond de Sloterplas. Station Lelylaan is erg dichtbij gelegen, waar de trein, metro, tram of bus vertrekt en rechtstreekse verbinding met Schiphol. Ook metrostation Heemstedestraat ligt op korte loopafstand evenals tramlijn 2. Met de auto ben je via de S106 zeer snel op de Ringweg A10.

BIJZONDERHEDEN
- Exceptioneel licht, modern en speels ingedeeld dubbel benedenhuis van 126m²;
- Royale living met industriële vibe;
- Terras van 13m² op het oosten;
- Drie goede slaapkamers;
- Twee badkamers en toiletten;
- Buiten de c.v. tevens infrarood panelen in living en slaapkamers bg;
- Parkeerplaats op afgesloten terrein;
- Externe box via de straat te bereiken;
- Professionele VvE, mjop aanwezig, servicekosten ad. €177,15 p/m;
- Afgekochte erfpacht t/m 30-6-2046;
- Canon vastgeklikt tegen de gunstige voorwaarden na lopend tijdvak;
- Rustig maar zeer gunstig gelegen;
- Kindvriendelijke omgeving met veel groen;
- Oplevering in overleg.

DISCLAIMER
Deze informatie is door ons met de nodige zorgvuldigheid samengesteld. Onzerzijds wordt echter geen enkele aansprakelijkheid aanvaard voor enige onvolledigheid, onjuistheid of anderszins, dan wel de gevolgen daarvan. Alle opgegeven maten en oppervlakten zijn indicatief. Koper heeft zijn eigen onderzoekplicht naar alle zaken die voor hem of haar van belang zijn. Met betrekking tot deze woning is de makelaar adviseur van verkoper. Wij adviseren u een deskundige (NVM-)makelaar in te schakelen die u begeleidt bij het aankoopproces. Indien u specifieke wensen heeft omtrent de woning, adviseren wij u deze tijdig kenbaar te maken aan uw aankopend makelaar en hiernaar zelfstandig onderzoek te (laten) doen. Indien u geen deskundige vertegenwoordiger inschakelt, acht u zich volgens de wet deskundig genoeg om alle zaken die van belang zijn te kunnen overzien. Van toepassing zijn de NVM voorwaarden.

NENCLAUSULE
De gebruiksoppervlakte is berekend conform de branche vastgestelde NEN 2580-norm. De oppervlakte kan derhalve afwijken van vergelijkbare panden en/of oude referenties. Dit heeft vooral te maken met deze (nieuwe) rekenmethode. Koper verklaart voldoende te zijn geïnformeerd over de hiervoor bedoelde normering. Verkoper en diens makelaar doen hun uiterste best de juiste oppervlakte en inhoud te berekenen aan de hand van eigen metingen en dit zoveel mogelijk te ondersteunen door het plaatsen van plattegronden met maatvoering. Mocht de maatvoering onverhoopt niet (volledig) overeenkomstig de normering zijn vastgesteld, wordt dit door koper aanvaard. Koper is voldoende in de gelegenheid gesteld de maatvoering zelf te (laten) controleren. Verschillen in de opgegeven maat en grootte geven geen der partijen enig recht, zo ook niet op aanpassing van de koopsom. Verkoper en diens makelaar aanvaarden geen enkele aansprakelijkheid in deze.

Plattegronden

Kenmerken

Overdracht

Prijs
€ 795.000 k.k.
Status
Beschikbaar
Oplevering
In overleg

Bouw

Soort appartement
Dubbel benedenhuis, Appartement
Soort bouw
Bestaande bouw
Bouwjaar
1998
Onderhoud binnen
Goed
Onderhoud buiten
Goed

Oppervlakten en inhoud

Woonoppervlakte
126m²
Inhoud
481m³

Indeling

Aantal kamers
4
Aantal slaapkamers
3
Aantal badkamers
2
Aantal verdiepingen
2
Voorzieningen
Mechanische ventilatie

Energie

Energielabel
B
Isolatie
Volledig geisoleerd
Warm water
C.V.-ketel
Verwarming
C.V.-ketel, Elektrische verwarming
Ketel
(Combi-ketel)

Buitenruimte

Ligging
In woonwijk
Schuur
Box
Faciliteiten schuur
Voorzien van elektra

Garage

Locatie

[ { "address": "Carnapstraat 223", "zipCode": "1062 KZ", "city": "Amsterdam", "lat": 52.3541678, "lng": 4.8388277, "heading": 0, "pitch": 0 } ]

Contact opnemen

Uw bericht is naar ons verzonden. Wij nemen zo snel mogelijk contact met je op.

Sorry, we kunnen helaas niet met zekerheid vaststellen of je een mens of een geautomatiseerde bot/spammer bent. Hierdoor kunnen we het formulier dat je hebt ingevuld niet verzenden. Probeer het opnieuw of neem direct contact op met de makelaar via e-mail.

Er is iets mis gegaan met het versturen van het formulier.
Controleer of jeu alle velden (goed) heeft ingevoerd en probeer het nog een keer.

recaptcha
reCAPTCHA
PrivacyTerms

Vergelijkbare woningen

Amsterdam Spadinalaan 117
€ 725.000 k.k.
Amsterdam Deurloostraat 121 1
€ 740.000 k.k.
Nieuw
Amsterdam Prinsengracht 731 E
€ 750.000 k.k.