Van Breestraat 109 H 1071 ZK Amsterdam
€ 2.250.000 k.k.

Vraagprijs€ 2.250.000 k.k.
TypeDubbel benedenhuis
Oppervlakte206m²
Slaapkamers6

Omschrijving

Exclusief benedenhuis met allure in het hart van Oud-Zuid!

Schitterend, royaal en stijlvol benedenhuis van circa 206m², verdeeld over drie volwaardige woonlagen, met een moderne, sfeervolle en serene uitstraling. Dit unieke familiehuis biedt een uitzonderlijke combinatie van klassieke grandeur en eigentijds comfort, compleet met veranda, tuin, balkon en Frans balkon (tezamen circa 30m²). De woning is ideaal gelegen in het prestigieuze Oud-Zuid, op loopafstand van de geliefde Cornelis Schuytstraat en het Vondelpark.
Het pand, oorspronkelijk gebouwd in 1905 en gelegen op eigen grond, beschikt sinds 2006 over een nieuwe fundering. In 2015 is het huis met oog voor detail en gebruik van hoogwaardige, luxe materialen en moderne apparatuur grotendeels gerenoveerd. Tegelijkertijd zijn de authentieke stijlkenmerken zorgvuldig behouden gebleven, wat zorgt voor een ongeëvenaarde sfeer en karakter. De hoge ornamentenplafonds, het prachtige glas-in-loodraamwerk en de lichte houten vloeren creëren samen een elegante en harmonieuze leefomgeving waarin klassiek en modern perfect samensmelten.

In 2022 zijn de veranda en tuin volledig vernieuwd. Hierbij is onder meer de hoge buitenmuur geïsoleerd en verstevigd, wat zorgt voor uitstekende warmtebehoud, geluidsisolatie en privacy. De veranda is opnieuw bekleed, de tuin voorzien van nieuwe terrastegels en er is een Franse drainage aangelegd — een stijlvolle en duurzame vernieuwing die het buitenleven optimaal tot zijn recht laat komen.

Een woning van uitzonderlijke klasse, waar luxe, comfort en karakter naadloos samenkomen — een zeldzame kans in één van de meest gewilde buurten van Amsterdam.

INDELING
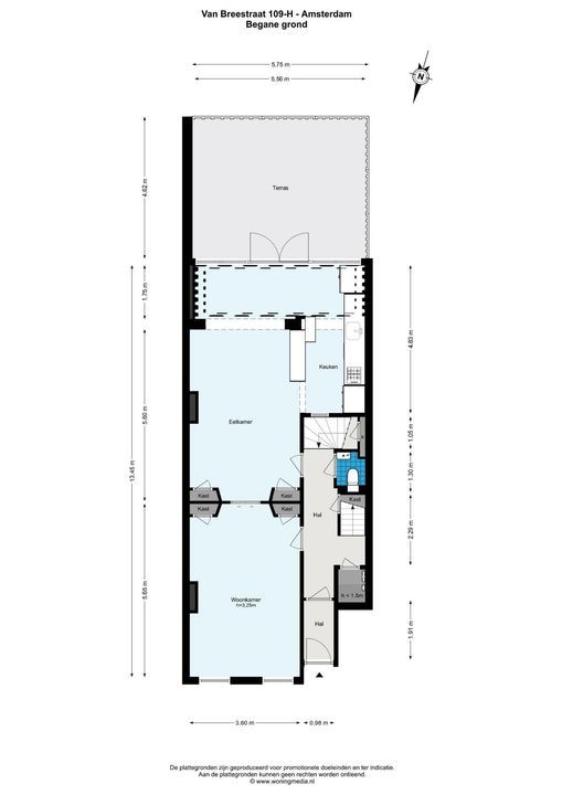
Via de eigen entree betreedt u dit elegante benedenhuis door een fraai marmeren tochtportaal, dat toegang biedt tot de ruime hal. Vanuit deze centrale hal zijn alle verdiepingen bereikbaar. Hier bevinden zich tevens een praktische ingebouwde garderobekast en het eerste separate toilet.

De royale en-suite living is vanuit de hal tweezijdig toegankelijk en ademt sfeer en elegantie. Aan de voorzijde bevindt zich de bijzonder sfeervolle zitkamer, voorzien van een open haard en twee imposante boogramen die uitkijken over de straatzijde – een ware blikvanger. Aan de achterzijde bevindt zich de ruime woon-/leefkeuken, die naadloos overloopt in de uitgebouwde, pandbrede glazen serre. Beide ruimtes beschikken over een stijlvolle schouw en ornamenten plafonds, en zijn van elkaar te scheiden via prachtige glas-in-lood en-suite schuifdeuren.

De woonkeuken is uitgevoerd in een tijdloos antraciet-wit kleurenschema met een donker natuurstenen werkblad. De keuken is uitgerust met hoogwaardige inbouwapparatuur, waaronder een opvallende hoge wijnklimaatkast. Een charmant detail vormt het glas-in-loodvenster tussen de keuken en de hal, dat zorgt voor extra licht en karakter.

Vanuit de keuken bieden openslaande deuren toegang tot een verhoogde veranda met dubbele trap naar het ondergelegen tuin van circa 25m². De tuin met aangename middagzon, voorzien van natuurlijke terrastegels, vormt een heerlijke plek om in alle rust te genieten na een drukke werkdag.

Dankzij de grote boogramen, glas-in-loodramen en de glazen serre wordt deze woonlaag overspoeld met daglicht, wat de ruimtes nog ruimer en lichter doet aanvoelen.

Via de stijlvolle, met vloerbekleding afgewerkte trap bereikt u de eerste verdieping — één van de twee slaapverdiepingen van deze woning. Hier bevinden zich vier slaapkamers, een separaat toilet en de eerste luxe badkamer, alle bereikbaar via de hal.

De hoofdslaapkamer aan de voorzijde beschikt over openslaande deuren naar een charmant balkon met uitzicht over de Van Breestraat. De kamer is voorzien van een originele schouw en een prachtig ornamenten plafond. De tweede kamer aan de voorzijde leent zich uitstekend als kinderkamer, werkkamer of walk-in closet.

Aan de achterzijde bevinden zich twee slaapkamers, waarvan één van aanzienlijk formaat met een Frans balkon en schouw. De naastgelegen kamer heeft openslaande deuren naar een balkon met zicht op de veranda en het terras.

De stijlvolle badkamer is uitgevoerd in een antraciet-witte kleurstelling en voorzien van Italiaans design sanitair van Boffi. De ruimte beschikt over een modern wit stalen ligbad, designwastafel, brede douchecabine, verlichte spiegel, zwarte designradiator en vloerverwarming – een combinatie van comfort en elegantie.

Via een tweede beklede trap bereikt u het souterrain, een volwaardige woonlaag met twee ruime slaapkamers, een diepe bergkast en de tweede badkamer.

De hal biedt toegang tot alle vertrekken. Beide slaapkamers beschikken over ramen met daglichttoetreding en een sfeervolle inpandige vensterbank over de volledige lengte. De achtergelegen kamer is extra ruim en heeft een speelse indeling, ideaal als logeerkamer, werkkamer of tienersuite.

De tweede badkamer is uitgevoerd in dezelfde hoogwaardige stijl als die op de eerste verdieping en voorzien van een ruime douchecabine, toilet, wit stalen wastafel, verlichte spiegel, vloerverwarming en zwarte designradiator. Achter de spiegelkast bevindt zich bovendien extra bergruimte. Onder het op maat gemaakte houten badkamermeubel is ruimte voor wasmachine en droger.

Afwerking
De gehele woning is voorzien van een hoogwaardige eikenhouten vloer, dubbel glas, hardhouten deuren met afsluitbare sloten, halogeen inbouwspots en een alarmsysteem. Alle ramen en deuren zijn voorzien van extra sluitwerk voor optimale veiligheid. Een bijzonder detail zijn de vele designlampen van Marcel Wanders, die bij de koop zijn inbegrepen en de woning een uitgesproken luxueuze uitstraling geven.

LIGGING & BEREIKBAARHEID
De woning is gelegen in het chique Oud-Zuid tussen de Cornelis Schuytstraat en de Emmastraat, op loopafstand van het welbekende Vondelpark en grenzend aan het prachtige Museumkwartier met o.a. de chique P.C. Hooftstraat en Van Baerlestraat. De buurt kenmerkt zich als rustig en gemoedelijk en biedt tal van mogelijkheden ten aanzien van winkelen, dineren, terrasjes pakken, musea, scholen, opvang, ontspanning en theaters. Het centrum is op fietsafstand gelegen evenals de bruisende Pijp, de charmante Beethovenbuurt of de gezellige Hoofddorppleinbuurt. Openbaar vervoer is praktisch voor de deur gelegen en diverse uitvalswegen zijn nabij.

PARKEREN
Op de openbare weg geldt betaald parkeren en parkeren middels een vergunning systeem. Volgens informatie van de website van gemeente Amsterdam is er een wachtlijst voor een parkeervergunning (wachtlijstgegevens per 28 oktober 2025, vergunningsgebied Zuid 8.1).

BIJZONDERHEDEN
- Riant, sfeervol en modern drielaags benedenhuis van 206m²;
- Woning voorzien van veranda + ruime tuin op bg van 26,6m², Frans balkon en balkon op 1e verd. van 3,40m²;
- Alarmsysteem in ieder vertrek aanwezig;
- Grotendeels voorzien van kwalitatief hoogwaardige hallogenen inbouwspots (2015);
- Hardhouten, massieve deuren met fraai deurbeslag van Weijntjes;
- Alle interne deuren zijn voorzien van sloten;
- Op maat gemaakte trapleuningen;
- Haard in living voorzien van een goed ventilatie systeem;
- High end “Boffi” badkamers voorzien van vloerverwarming;
- Koop is inclusief diverse designlampen van Marcel Wanders;
- Geheel voorzien van een bijzonder goede en behandelde eikenhouten vloer;
- Deuropeners op iedere woonlaag;
- Cat5 kabel door de gehele woning;
- Volwaardig souterrain inclusief funderingsherstel, 2006;
- Ideale locatie voor gezinnen;
- Oplevering in overleg, kan spoedig.

DISCLAIMER
Deze informatie is door ons met de nodige zorgvuldigheid samengesteld. Onzerzijds wordt echter geen enkele aansprakelijkheid aanvaard voor enige onvolledigheid, onjuistheid of anderszins, dan wel de gevolgen daarvan. Alle opgegeven maten en oppervlakten zijn indicatief. Koper heeft zijn eigen onderzoekplicht naar alle zaken die voor hem of haar van belang zijn. Met betrekking tot deze woning is de makelaar adviseur van verkoper. Wij adviseren u een deskundige (NVM-)makelaar in te schakelen die u begeleidt bij het aankoopproces. Indien u specifieke wensen heeft omtrent de woning, adviseren wij u deze tijdig kenbaar te maken aan uw aankopend makelaar en hiernaar zelfstandig onderzoek te (laten) doen. Indien u geen deskundige vertegenwoordiger inschakelt, acht u zich volgens de wet deskundig genoeg om alle zaken die van belang zijn te kunnen overzien. Van toepassing zijn de NVM voorwaarden.

NENCLAUSULE
De gebruiksoppervlakte is berekend conform de branche vastgestelde NEN 2580-norm. De oppervlakte kan derhalve afwijken van vergelijkbare panden en/of oude referenties. Dit heeft vooral te maken met deze (nieuwe) rekenmethode. Koper verklaart voldoende te zijn geïnformeerd over de hiervoor bedoelde normering. Verkoper en diens makelaar doen hun uiterste best de juiste oppervlakte en inhoud te berekenen aan de hand van eigen metingen en dit zoveel mogelijk te ondersteunen door het plaatsen van plattegronden met maatvoering. Mocht de maatvoering onverhoopt niet (volledig) overeenkomstig de normering zijn vastgesteld, wordt dit door koper aanvaard. Koper is voldoende in de gelegenheid gesteld de maatvoering zelf te (laten) controleren. Verschillen in de opgegeven maat en grootte geven geen der partijen enig recht, zo ook niet op aanpassing van de koopsom. Verkoper en diens makelaar aanvaarden geen enkele aansprakelijkheid in deze.

Plattegronden

Kenmerken

Overdracht

Prijs
€ 2.250.000 k.k.
Status
Beschikbaar
Oplevering
In overleg

Bouw

Soort appartement
Dubbel benedenhuis
Soort bouw
Bestaande bouw
Bouwjaar
1905
Onderhoud binnen
Goed
Onderhoud buiten
Goed

Oppervlakten en inhoud

Woonoppervlakte
206m²
Inhoud
772m³

Indeling

Aantal kamers
8
Aantal slaapkamers
6
Aantal badkamers
2
Aantal verdiepingen
3
Voorzieningen
Alarminstallatie, Frans balkon, Mechanische ventilatie, Rookkanaal

Energie

Energielabel
B
Isolatie
Dubbel glas
Warm water
C.V.-ketel
Verwarming
C.V.-ketel

Buitenruimte

Ligging
In woonwijk
Balkon
Ja
Tuin
Achtertuin
Achtertuin
Zuid, 27m², 462×575cm

Garage

Locatie

[ { "address": "Van Breestraat 109", "zipCode": "1071 ZK", "city": "Amsterdam", "lat": 52.3558546, "lng": 4.8732026, "heading": 0, "pitch": 0 } ]

Contact opnemen

Uw bericht is naar ons verzonden. Wij nemen zo snel mogelijk contact met je op.

Sorry, we kunnen helaas niet met zekerheid vaststellen of je een mens of een geautomatiseerde bot/spammer bent. Hierdoor kunnen we het formulier dat je hebt ingevuld niet verzenden. Probeer het opnieuw of neem direct contact op met de makelaar via e-mail.

Er is iets mis gegaan met het versturen van het formulier.
Controleer of jeu alle velden (goed) heeft ingevoerd en probeer het nog een keer.

recaptcha
reCAPTCHA
PrivacyTerms

Vergelijkbare woningen

Nieuw
Amsterdam Prinsengracht 510 1
€ 1.995.000 k.k.