Handweghof 17 1185 VC Amstelveen
€ 1.000.000 k.k.

Vraagprijs€ 1.000.000 k.k.
TypeBovenwoning
Oppervlakte142m²
Slaapkamers3

Omschrijving

Royaal appartement van 142m² in Amstelveen, gelegen in een uniek complex dat gebouwd is aan de gevel van de historische Handwegkerk en in 2021 volledig nieuw is opgeleverd. Dit ruime appartement beschikt over drie slaapkamers, een royale living en een grote open keuken. De luxe badkamer is en suite en uitgevoerd in een strakke, moderne stijl. Daarnaast zijn er een aparte wasruimte en extra bergruimte aanwezig.

Het royale L-vormige balkon van circa 26m² vormt een fijne verlenging van de leefruimte en is bereikbaar via de woonkamer. Het appartement is gelegen op de eerste verdieping en volledig instap klaar.

De woning beschikt over een eigen parkeerplaats en een praktische berging in de onderbouw. Deze berging is voorzien van elektra.

De Vereniging van Eigenaren Poelstede Amstelveen wordt professioneel beheerd en bestaat uit 14 leden. De servicekosten bedragen €402,- per maand.

INDELING
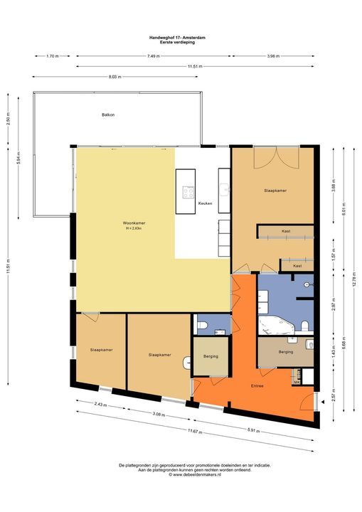
Via de nette gemeenschappelijke entree op de begane grond is het appartement gelegen op de eerste verdieping bereikbaar per lift en trap. Bij binnenkomst treft u een ruime hal die toegang biedt tot alle vertrekken.

Aan de voorzijde is de zeer lichte en ruime woonkamer gelegen met grote raampartijen van vloer tot plafond, wat zorgt voor veel lichtinval. De woonkamer is voorzien van airconditioning en elektrische zonneschermen. Via de openslaande deuren is het L-vormige balkon van 26m² bereikbaar. De woonkamer biedt volop ruimte voor een royale zithoek en eethoek.

De volledig uitgeruste luxe keuken is uitgevoerd in een wandopstelling met extra werkblad en kastenwand, inclusief een kookeiland. De kasten zijn uitgevoerd in een beige kleurstelling in combinatie met een stijlvol zwart werkblad, voorzien van hoogwaardige inbouwapparatuur, waaronder een combi-oven van Siemens, inductiekookplaat en vaatwasser.

De hoofdslaapkamer is gelegen aan de achterzijde van het gebouw en biedt openslaande deuren naar een Frans balkon, een walk-in closet, airconditioning en een royale en suite badkamer. De badkamer is modern afgewerkt met grijze vloer- en wandtegels en beschikt over een inloopdouche, een groot ligbad, een dubbel wastafelmeubel in houtlook en een toilet.

De tweede slaapkamer ligt aan de voorzijde van het appartement en is ruim van formaat. De derde slaapkamer, bereikbaar vanuit de woonkamer, kan uitstekend dienstdoen als werk- of logeerkamer.

In de hal zijn het separate toilet, de wasruimte en de technische ruimte met aansluitingen voor wasmachine en de uitstortgootsteen gesitueerd. Hier kan ook eenvoudig een tweede badkamer worden gecreëerd.
De gehele woning is voorzien van strakke witte wanden met inbouwspots en houten kozijnen met dubbele beglazing.

LIGGING EN BEREIKBAARHEID
De woning is rustig gelegen aan de Handweghof in Amstelveen. Op loopafstand bevinden zich diverse restaurants en cafés, waaronder Colijn, Aan de Poel en Bistro Toost. Voor de dagelijkse boodschappen en overige voorzieningen ligt het Stadshart van Amstelveen, Lindeland, Bovenkerk en het Oude Dorp op korte afstand. Het Amsterdamse Bos en De Poel zijn nabij en bieden volop mogelijkheden voor recreatie. De bereikbaarheid is uitstekend dankzij goede openbaarvervoersverbindingen en de nabijheid van de A9 en A10, waardoor Amsterdam, de Zuidas en Schiphol snel te bereiken zijn.

PARKEREN
Je beschikt over een eigen overdekte parkeerplaats (met groen dak)
Voor bezoekers zijn er drie bezoekersparkeerplaatsen op het terrein aanwezig.

BIJZONDERHEDEN
- Ruim 4-kamer appartement van 142m²
- Mogelijkheid voor het creëren van een tweede badkamer
- Gebouwd aan de voorgevel van de historische Handwegkerk
- Energielabel A
- L-vormig balkon van 26m²
- Beschikt over airconditioning
- In 2021 volledig nieuw gebouwd
- Parkeren op eigen terrein
- Eigen berging in de onderbouw
- Oplevering in overleg

DISCLAIMER
Deze informatie is door ons met de nodige zorgvuldigheid samengesteld. Onzerzijds wordt echter geen enkele aansprakelijkheid aanvaard voor enige onvolledigheid, onjuistheid of anderszins, dan wel de gevolgen daarvan. Alle opgegeven maten en oppervlakten zijn indicatief. Koper heeft zijn eigen onderzoekplicht naar alle zaken die voor hem of haar van belang zijn. Met betrekking tot deze woning is de makelaar adviseur van verkoper. Wij adviseren u een deskundige (NVM-)makelaar in te schakelen die u begeleidt bij het aankoopproces. Indien u specifieke wensen heeft omtrent de woning, adviseren wij u deze tijdig kenbaar te maken aan uw aankopend makelaar en hiernaar zelfstandig onderzoek te (laten) doen. Indien u geen deskundige vertegenwoordiger inschakelt, acht u zich volgens de wet deskundig genoeg om alle zaken die van belang zijn te kunnen overzien. Van toepassing zijn de NVM voorwaarden.

NENCLAUSULE
De gebruiksoppervlakte is berekend conform de branche vastgestelde NEN 2580-norm. De oppervlakte kan derhalve afwijken van vergelijkbare panden en/of oude referenties. Dit heeft vooral te maken met deze (nieuwe) rekenmethode. Koper verklaart voldoende te zijn geïnformeerd over de hiervoor bedoelde normering. Verkoper en diens makelaar doen hun uiterste best de juiste oppervlakte en inhoud te berekenen aan de hand van eigen metingen en dit zoveel mogelijk te ondersteunen door het plaatsen van plattegronden met maatvoering. Mocht de maatvoering onverhoopt niet (volledig) overeenkomstig de normering zijn vastgesteld, wordt dit door koper aanvaard. Koper is voldoende in de gelegenheid gesteld de maatvoering zelf te (laten) controleren. Verschillen in de opgegeven maat en grootte geven geen der partijen enig recht, zo ook niet op aanpassing van de koopsom. Verkoper en diens makelaar aanvaarden geen enkele aansprakelijkheid in deze.

Plattegronden

Kenmerken

Overdracht

Prijs
€ 1.000.000 k.k.
Status
Beschikbaar
Oplevering
In overleg

Bouw

Soort appartement
Bovenwoning, Appartement
Soort bouw
Bestaande bouw
Bouwjaar
2021
Onderhoud binnen
Goed
Onderhoud buiten
Goed
Bijzonderheden
Toegankelijk voor gehandicapten, Toegankelijk voor ouderen

Oppervlakten en inhoud

Woonoppervlakte
142m²
Inhoud
453m³

Indeling

Aantal kamers
4
Aantal slaapkamers
3
Aantal badkamers
1
Aantal verdiepingen
1
Voorzieningen
Airconditioning, Frans balkon, Lift, Mechanische ventilatie, Zonnepanelen

Energie

Energielabel
A
Isolatie
Dubbel glas
Warm water
C.V.-ketel
Verwarming
Vloerverwarming geheel, Warmte Terugwininstallatie

Buitenruimte

Ligging
Beschutte ligging, In woonwijk
Balkon
Ja

Garage

Locatie

[ { "address": "Handweghof 17", "zipCode": "1185 VC", "city": "Amstelveen", "lat": 52.294652, "lng": 4.843799, "heading": 0, "pitch": 0 } ]

Contact opnemen

Uw bericht is naar ons verzonden. Wij nemen zo snel mogelijk contact met je op.

Sorry, we kunnen helaas niet met zekerheid vaststellen of je een mens of een geautomatiseerde bot/spammer bent. Hierdoor kunnen we het formulier dat je hebt ingevuld niet verzenden. Probeer het opnieuw of neem direct contact op met de makelaar via e-mail.

Er is iets mis gegaan met het versturen van het formulier.
Controleer of jeu alle velden (goed) heeft ingevoerd en probeer het nog een keer.

recaptcha
reCAPTCHA
PrivacyTerms