Emmastraat 29 3 1071 JB Amsterdam
€ 1.650.000 k.k.

Vraagprijs€ 1.650.000 k.k.
TypeBovenwoning
Oppervlakte163m²
Slaapkamers3

Omschrijving

Royaal, modern en turn-key dubbel bovenhuis van 163m² en met twee balkons en een riant dakterras van maar liefst 52m². Dit bovenhuis beschikt over een omvangrijke woonverdieping, een luxe keuken, drie slaapkamers en twee strak vormgegeven badkamers. Het pand is gelegen in Oud-Zuid op loopafstand van het Vondelpark! De erfpacht is eeuwigdurend afgekocht.

Bij binnenkomst wordt men direct overvallen door de immense oppervlakte en hoogtes wat dit ruime bovenhuis van nog meer volume voorziet. De woning is geheel neutraal en modern uitgevoerd en beschikt over een kwalitatieve laminaatvloer, mat witte paneeldeuren met zwart deurbeslag, zwarte lamellen en schakelmateriaal.

De VvE Emmastraat 29 telt 5 leden en de administratie wordt professioneel gevoerd. De servicekosten bedragen € 478,- per maand. Er is een meerjarenonderhoudsplan aanwezig.

INDELING
Via de gemeenschappelijke entree leidt het nette trappenhuis naar de toegang op de tweede verdieping. De overloop met garderobeplaats heeft een interne gestoffeerde trap naar bovengelegen verdiepingen. Op de derde verdieping is de exceptioneel ruime leefruimte gerealiseerd, bereikbaar vanaf de hal via hoge glas in staal openslaande deuren. Aan de voorzijde bevindt zich de ruime L-vorm woonkamer, voorzien van een fraaie schouw en openslaande deuren naar een knus balkon met zicht op de Emmastraat zelf. De achterzijde beslaat de ruime woonkeuken, tevens voorzien van openslaande deuren naar het aangrenzende balkon van 6,5m² met zicht op de binnentuinen.

De strak uitgevoerde keuken heeft een gezellig zitje op de kop en is geheel zwart van uitvoering. Met de hoge apparatuurswand aan de kamerzijde biedt de keuken dan ook bijzonder goede bergruimte. Voorts is de keuken geheel uitgevoerd met inbouwapparatuur met in het bijzonder vermeld; het opbouwfornuis met wokbrander en de Amerikaanse koelkast.

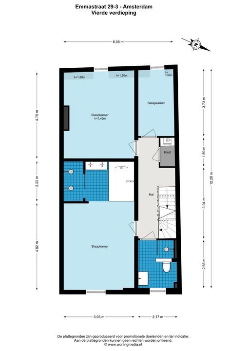
Via de ruime hal, voorzien van een ruim separaat toilet met urinoir en wastafel, leidt de gestoffeerde trap naar bovengelegen slaapverdieping. De hal alhier geeft toegang tot alle ruimtes en heeft een witte houten trap naar het dakterras. Aan de achterzijde bevindt zich de hoofdslaapkamer met een en-suite badkamer. De badkamer is uitgevoerd in een grijs/zwarte kleurstelling en is voorzien van een tweepersoonsligbad, een brede inloopdouche met tweemaal een regen- en handdouche en een breed hoogglans zwart wastafelmeubel met twee ingebouwde kranen en een goede spiegel. Naast deze hoofdslaapkamer is de tweede badkamer gesitueerd, eveneens in een grijs/zwarte uitvoering. Deze badkamer voorziet in een douchecabine met stort- en handdouche, een zwevend toilet en een hoogglans zwart wastafelmeubel.

De overige twee slaapkamers bevinden zich aan de voorzijde, beide voorzien van een charmant dakkapel. Aan de linkerzijde ligt de tweede hoofdslaapkamer met plaats voor zowel een tweepersoonsbed als een goede kastenwand en eventuele lees/werkhoekje. Naastgelegen kamer is tevens prettig van formaat en dient momenteel als kastenkamer. De hal biedt nog een diepe inbouwkast waarin de c.v. opstelling en wasmachineaansluiting is geplaatst.

Last but not least; het riante dakterras van maar liefst 52m². Dit heerlijk privé gelegen dakterras geeft met de geboden oppervlakte ruimte voor zowel een grote loungehoek als een 6-persoons eettafel. Vanuit hier heeft men fantastisch zicht over geheel Amsterdam.

LIGGING, BEREIKBAARHEID
De woning is gelegen is Amsterdam Oud-Zuid tussen de Willemsparkweg en De Lairessestraat. Het Vondelpark bevindt zich op loopafstand. Exclusief winkelen kunt u aan de Cornelis Schuytstraat, de Van Baerlestraat en de P.C. Hooftstraat, alle te vinden op loopafstand en gelegen in het chique Museumkwartier. Aan de nabijgelegen Amstelveenseweg en Stadionweg bevinden zich tevens winkels voor de dagelijkse boodschappen evenals diverse speciaalzaken. Voorzieningen zoals scholen, opvang en sportfaciliteiten bevinden zich in de directe omgeving van de woning evenals culturele uitgaansgelegenheden. Openbaar vervoer bevindt zich nagenoeg naast de woning en er is een goede ontsluiting naar Ringweg A-10.

PARKEREN
Op de openbare weg betaald parkeren en parkeren middels een vergunning systeem. Volgens informatie van de website van gemeente Amsterdam is er een wachtlijst voor een parkeervergunning (wachtlijstgegevens per 18 maart 2026, vergunningsgebied Zuid 8.1).

BIJZONDERHEDEN
Royaal en modern dubbel bovenhuis van 163m²;
Geweldig dakterras van 52m² met weids zicht over de gehele stad;
Erfpacht eeuwigdurend afgekocht;
Omvangrijke leefverdieping met twee balkons en een moderne open keuken;
Drie goede slaapkamers;
Twee strakke badkamers;
Professionele VvE, servicekosten ad. € 478,- p/m, mjop aanwezig;
Turn-key;
Niet-zelfbewoningsclausule van toepassing;
Gelegen in Oud-Zuid met alle faciliteiten in de directe omgeving;
Oplevering kan spoedig.

DISCLAIMER
Deze informatie is door ons met de nodige zorgvuldigheid samengesteld. Onzerzijds wordt echter geen enkele aansprakelijkheid aanvaard voor enige onvolledigheid, onjuistheid of anderszins, dan wel de gevolgen daarvan. Alle opgegeven maten en oppervlakten zijn indicatief. Koper heeft zijn eigen onderzoekplicht naar alle zaken die voor hem of haar van belang zijn. Met betrekking tot deze woning is de makelaar adviseur van verkoper. Wij adviseren u een deskundige (NVM-)makelaar in te schakelen die u begeleidt bij het aankoopproces. Indien u specifieke wensen heeft omtrent de woning, adviseren wij u deze tijdig kenbaar te maken aan uw aankopend makelaar en hiernaar zelfstandig onderzoek te (laten) doen. Indien u geen deskundige vertegenwoordiger inschakelt, acht u zich volgens de wet deskundig genoeg om alle zaken die van belang zijn te kunnen overzien. Van toepassing zijn de NVM voorwaarden.

NENCLAUSULE
De gebruiksoppervlakte is berekend conform de branche vastgestelde NEN 2580-norm. De oppervlakte kan derhalve afwijken van vergelijkbare panden en/of oude referenties. Dit heeft vooral te maken met deze (nieuwe) rekenmethode. Koper verklaart voldoende te zijn geïnformeerd over de hiervoor bedoelde normering. Verkoper en diens makelaar doen hun uiterste best de juiste oppervlakte en inhoud te berekenen aan de hand van eigen metingen en dit zoveel mogelijk te ondersteunen door het plaatsen van plattegronden met maatvoering. Mocht de maatvoering onverhoopt niet (volledig) overeenkomstig de normering zijn vastgesteld, wordt dit door koper aanvaard. Koper is voldoende in de gelegenheid gesteld de maatvoering zelf te (laten) controleren. Verschillen in de opgegeven maat en grootte geven geen der partijen enig recht, zo ook niet op aanpassing van de koopsom. Verkoper en diens makelaar aanvaarden geen enkele aansprakelijkheid in deze.

Plattegronden

Kenmerken

Overdracht

Prijs
€ 1.650.000 k.k.
Status
Beschikbaar
Oplevering
In overleg

Bouw

Soort appartement
Bovenwoning, Dubbel bovenhuis
Soort bouw
Bestaande bouw
Bouwjaar
1918
Onderhoud binnen
Goed
Onderhoud buiten
Goed

Oppervlakten en inhoud

Woonoppervlakte
163m²
Inhoud
614m³

Indeling

Aantal kamers
4
Aantal slaapkamers
3
Aantal badkamers
2
Aantal verdiepingen
2
Voorzieningen
Dakraam, Frans balkon, Mechanische ventilatie

Energie

Energielabel
E
Isolatie
Dubbel glas
Warm water
C.V.-ketel
Verwarming
C.V.-ketel

Buitenruimte

Ligging
In woonwijk
Balkon
Ja

Garage

Locatie

[ { "address": "Emmastraat 29", "zipCode": "1071 JB", "city": "Amsterdam", "lat": 52.3532695, "lng": 4.8697377, "heading": 0, "pitch": 0 } ]

Contact opnemen

Uw bericht is naar ons verzonden. Wij nemen zo snel mogelijk contact met je op.

Sorry, we kunnen helaas niet met zekerheid vaststellen of je een mens of een geautomatiseerde bot/spammer bent. Hierdoor kunnen we het formulier dat je hebt ingevuld niet verzenden. Probeer het opnieuw of neem direct contact op met de makelaar via e-mail.

Er is iets mis gegaan met het versturen van het formulier.
Controleer of jeu alle velden (goed) heeft ingevoerd en probeer het nog een keer.

recaptcha
reCAPTCHA
PrivacyTerms