Elckerlijcstraat 171 1055 AK Amsterdam
€ 650.000 k.k.

Vraagprijs€ 650.000 k.k.
TypeBovenwoning
Oppervlakte93m²
Slaapkamers3

Omschrijving

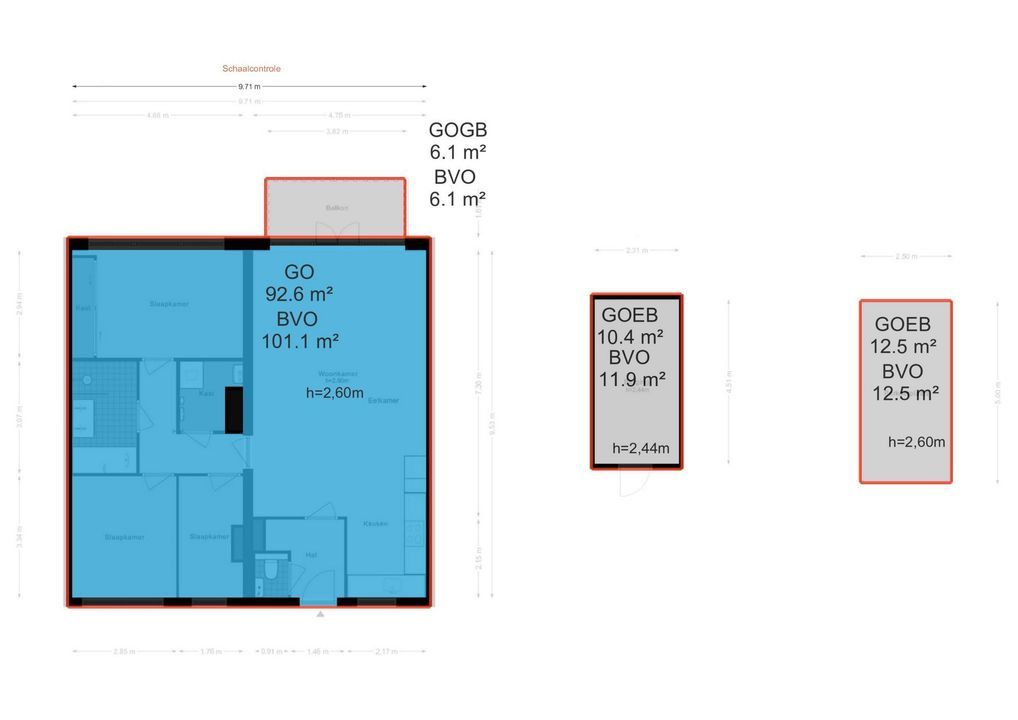
Ruim en licht vierkamerappartement van 93m², gelegen op de derde verdieping, met een royaal balkon van 6m², een eigen parkeerplaats en een separate berging in de onderbouw. De woning beschikt over drie slaapkamers, een open keuken en een moderne badkamer. Dankzij de grote raampartijen geniet het appartement van veel natuurlijk licht en een prettige, open sfeer. De erfpacht is eeuwigdurend afgekocht.

INDELING
Via de gezamenlijke entree bereikt u middels het trappenhuis en/of de lift de derde verdieping.
Entree van de woning met hal, garderoberuimte en een separaat toilet met fontein.

Bij binnenkomst treft u direct de royale en lichte woonkamer, welke voldoende ruimte biedt voor zowel een comfortabele zit- als eethoek. Middels openslaande deuren heeft u toegang tot het zonnige balkon van 6m², gelegen op het zuid-west. Het balkon beschikt over een zonnescherm. Vanaf het balkon geniet u van een uitzicht over de binnentuin.

De open keuken is modern uitgevoerd in een witte kleurstelling met een antraciet werkblad en beschikt over diverse inbouwapparatuur, waaronder een koelkast, vriezer, vaatwasser, vijfpits gasfornuis, oven en magnetron. Daarnaast is er voldoende bergruimte aanwezig in de lades en kasten.

Via de hal bereikt u de overige vertrekken. Aan de voorzijde van de woning bevinden zich twee slaapkamers. De eerste kamer is ruim opgezet en voorzien van grote raampartijen, met voldoende ruimte voor een tweepersoonsbed en een kast. De tweede kamer is ideaal te gebruiken als werk-, hobby- of logeerkamer en beschikt over ingebouwde planken.

De hoofdslaapkamer is gelegen aan de achterzijde van de woning en kenmerkt zich door de grote raampartijen, wat zorgt voor een lichte uitstraling. Ook hier is voldoende ruimte voor een tweepersoonsbed en een kast.

De moderne badkamer is stijlvol afgewerkt met een antraciet vloertegel en witte wandtegels en is voorzien van een ligbad, een inloopdouche met glazen wand en een dubbel wastafelmeubel.

Daarnaast beschikt de woning over een praktische inpandige berging met wasmachineaansluiting.
In de onderbouw bevindt zich een separate berging en een eigen parkeerplaats. De VvE kosten voor de parkeerplaats bedragen €57,74 per maand.

LIGGING EN BEREIKBAARHEID
Het appartement is gelegen aan de Elckerlijcstraat in een rustige woonomgeving, om de hoek van de Jan van Galenstraat en het Mercatorplein met diverse winkels en horecagelegenheden binnen handbereik en de Jordaan op fietsafstand. In de directe omgeving bevinden zich het Erasmuspark en het Westerpark voor ontspanning en recreatie. Ook zijn de TrainMore, MasMais Taqueria en Ulmus Bakkerij op korte afstand gelegen.
De bereikbaarheid is uitstekend met zowel de auto als het openbaar vervoer en uitvalswegen zijn snel te bereiken.

PARKEREN
In de ondergelegen garage beschikt u over een eigen parkeerplaats.
Op de openbare weg geldt betaald parkeren en parkeren met een vergunning systeem.

BIJZONDERHEDEN
- Vierkamerappartement van 93m²
- Eigen parkeerplaats in ondergelegen garage
- Zonnig balkon van 6m²
- Erfpacht is eeuwigdurend afgekocht
- Mooie eikenhout lamelparketvloer
- Bovenste verdieping (geen bovenburen)
- Modern gebouw met lift
- Oplevering in overleg

DISCLAIMER
Deze informatie is door ons met de nodige zorgvuldigheid samengesteld. Onzerzijds wordt echter geen enkele aansprakelijkheid aanvaard voor enige onvolledigheid, onjuistheid of anderszins, dan wel de gevolgen daarvan. Alle opgegeven maten en oppervlakten zijn indicatief. Koper heeft zijn eigen onderzoekplicht naar alle zaken die voor hem of haar van belang zijn. Met betrekking tot deze woning is de makelaar adviseur van verkoper. Wij adviseren u een deskundige (NVM-)makelaar in te schakelen die u begeleidt bij het aankoopproces. Indien u specifieke wensen heeft omtrent de woning, adviseren wij u deze tijdig kenbaar te maken aan uw aankopend makelaar en hiernaar zelfstandig onderzoek te (laten) doen. Indien u geen deskundige vertegenwoordiger inschakelt, acht u zich volgens de wet deskundig genoeg om alle zaken die van belang zijn te kunnen overzien. Van toepassing zijn de NVM voorwaarden.

NENCLAUSULE
De gebruiksoppervlakte is berekend conform de branche vastgestelde NEN 2580-norm. De oppervlakte kan derhalve afwijken van vergelijkbare panden en/of oude referenties. Dit heeft vooral te maken met deze (nieuwe) rekenmethode. Koper verklaart voldoende te zijn geïnformeerd over de hiervoor bedoelde normering. Verkoper en diens makelaar doen hun uiterste best de juiste oppervlakte en inhoud te berekenen aan de hand van eigen metingen en dit zoveel mogelijk te ondersteunen door het plaatsen van plattegronden met maatvoering. Mocht de maatvoering onverhoopt niet (volledig) overeenkomstig de normering zijn vastgesteld, wordt dit door koper aanvaard. Koper is voldoende in de gelegenheid gesteld de maatvoering zelf te (laten) controleren. Verschillen in de opgegeven maat en grootte geven geen der partijen enig recht, zo ook niet op aanpassing van de koopsom. Verkoper en diens makelaar aanvaarden geen enkele aansprakelijkheid in deze.

Plattegronden

Kenmerken

Overdracht

Prijs
€ 650.000 k.k.
Status
Beschikbaar
Oplevering
In overleg

Bouw

Soort appartement
Bovenwoning, Appartement
Soort bouw
Bestaande bouw
Bouwjaar
2008
Onderhoud binnen
Goed
Onderhoud buiten
Goed

Oppervlakten en inhoud

Woonoppervlakte
93m²
Inhoud
293m³

Indeling

Aantal kamers
4
Aantal slaapkamers
3
Aantal badkamers
1
Aantal verdiepingen
1
Voorzieningen
Mechanische ventilatie

Energie

Energielabel
A
Isolatie
Dubbel glas
Warm water
C.V.-ketel
Verwarming
C.V.-ketel

Buitenruimte

Ligging
Aan rustige weg, In woonwijk
Balkon
Ja
Schuur
Inpandig
Faciliteiten schuur
Voorzien van elektra

Garage

Soort garage
Parkeerkelder

Locatie

[ { "address": "Elckerlijcstraat 171", "zipCode": "1055 AK", "city": "Amsterdam", "lat": 52.3775878, "lng": 4.8474084, "heading": 0, "pitch": 0 } ]

Contact opnemen

Uw bericht is naar ons verzonden. Wij nemen zo snel mogelijk contact met je op.

Sorry, we kunnen helaas niet met zekerheid vaststellen of je een mens of een geautomatiseerde bot/spammer bent. Hierdoor kunnen we het formulier dat je hebt ingevuld niet verzenden. Probeer het opnieuw of neem direct contact op met de makelaar via e-mail.

Er is iets mis gegaan met het versturen van het formulier.
Controleer of jeu alle velden (goed) heeft ingevoerd en probeer het nog een keer.

recaptcha
reCAPTCHA
PrivacyTerms

Vergelijkbare woningen

Amsterdam Czaar Peterstraat 23 E
€ 749.000 k.k.
Amsterdam Kromme Waal 26 B
€ 735.000 k.k.
Amsterdam Vossiusstraat 13 E
€ 699.000 k.k.