Diepenbrockstraat 19 1077 VX Amsterdam
€ 3.795.000 k.k.

Vraagprijs€ 3.795.000 k.k.
TypeHoekwoning
Perceel oppervlakte303m²
Oppervlakte316m²
Slaapkamers8

Omschrijving

Bijzonder smaakvol, exceptioneel licht en hoogwaardig half vrijstaand woonhuis van totaal 316m² (inclusief kelder van 49m²), verdeeld over vier verdiepingen met een beschutte, zonnige en fraai aangelegde voor-, zij en achtertuin (totaal ca. 175m²), twee balkons en een ruime kelder. Dit volumineuze woonhuis is zeer luxe verbouwd en beschikt o.a. over een zeer royale woonverdieping met fraaie woonkeuken, zeven slaapkamers en twee luxe badkamers. Dit instapklare familiehuis, dat weids uitzicht combineert met maximale privacy, bevindt zich in de chique Diepenbrockbuurt met alle faciliteiten binnen handbereik. De erfpacht is eeuwigdurend afgekocht.

In 2018 is de woning bijzonder smaakvol gerenoveerd. Bij deze renovatie is een uitstekende combinatie gemaakt van moderne en duurzame materialen in een natuurlijke kleurstelling waarbij de authentieke stijlelementen behouden zijn gebleven. Noemenswaardig is de omvangrijke leefverdieping met stijlvolle woonkeuken en een wonderschone halfronde erker. Deze serene verdieping met twee sfeerhaarden biedt, met de groene heg rondom, zeer veel privacy. De beschutgelegen tuin van maar liefst 175m² verlengt deze woonlaag aanzienlijk. Een eye-catcher is de prachtige vorm van het bijzonder lichte trappenhuis met een knipoog naar het “Guggenheim”.

Tenslotte is de woning uitgevoerd met fraaie ingebouwde verlichting, een hoogwaardige eikenhouten visgraatvloer op de begane grond, kwalitatieve vloerbekleding op de 1e en 3e verdieping en een hoogwaardige PVC vloer op de 2e verdieping. Voorts is dit familiehuis voorzien van isolerende beglazing en een parkeerplaats op eigen terrein met de mogelijkheid tot elektrisch laden. Met het geboden woonoppervlak is het woongenot subliem te noemen en biedt de woning hiermee meerdere mogelijkheden. Naast het gebruik als riant gezinshuis zijn er tevens goede mogelijkheden voor werken aan huis.

INDELING
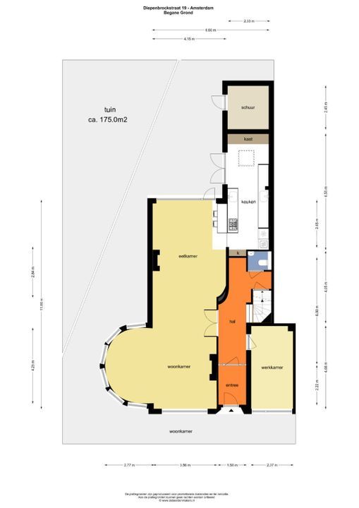
Via de voortuin met parkeerplaats komt u bij de entree van de woning, Het aangename tochtportaal heeft een geslepen glazen tussendeur naar de ruime hal vanwaar alle vertrekken toegankelijk zijn. De hal is voorzien van een garderobe, het separate toilet en toegang tot de leefruimte middels de openslaande geslepen glazen deuren.

De oogverblindende leefverdieping is onderverdeeld in een drietal ruimtes; de sfeervolle zitruimte met erker aan de voorzijde, de eetruimte in het midden gelegen met aansluitend de elegante woonkeuken. Zowel de zitruimte als eetruimte beschikken over een gashaard en is de eetruimte nog voorzien van een brede, plafondhoge op maat gemaakte kastenwand. De brede raampartij aan de tuinzijde is voorzien van originele glas in lood bovenramen.

Geheel aan de achterzijde ligt de elegant uitgevoerde keuken, voorzien van een kook/spoeleiland, witte matte kasten/lades in combinatie met een slank zandkleurig werkblad. Deze luxe keuken is aan twee zijdes opgesteld waarbij het kookeiland aan de kamerzijde extra zitgelegenheid biedt. Het eiland met inductiekookplaat is tevens voorzien van een spoelgedeelte met Quooker. De tegenovergelegen apparatuurswand beschikt eveneens over een spoelgedeelte maar ook de overige gewenste inbouwapparatuur met in het bijzonder vermeld de Gaggenau stoomoven en combi oven/magnetron. Een leuk detail is het dakraam, dat zorgt voor nog meer licht in de al heldere keuken.

Zowel via de eetkamer als wel de openslaande deuren in de keuken heeft u toegang tot de immense, zonnige tuin van maar liefst 175m². De tuin is driekwart rondom gesitueerd en grotendeels betegeld met groenvoorzieningen aan de rand. Met deze oppervlakte biedt de tuin dan ook meerdere hoekjes voor loungen, eten, zonnen etc. Voorts beschikt de tuin over een bewatering- en sfeervol verlichtingssysteem, een achterom en een aangename schuur met goede bergruimte.

Aan de voorzijde van de begane grond is een ruime werkkamer gelegen welke uitkijkt over de eigen parkeerplaats in de voortuin.

De beklede trap brengt u naar de 1e slaapverdieping van dit herenhuis. Vanuit de hal zijn alle kamers toegankelijk. Aan de achterzijde vindt u de hoofdslaapkamer voorzien van airconditioning, een plafondhoge en muur brede kastenwand, toegang tot het eigen balkon en de en-suite gelegen badkamer, tevens bereikbaar vanuit de hal. Het balkon is uitgevoerd met een zwart/wit tegelvloer en kijkt uit over eigen tuin.

De prachtige badkamer aan de achterzijde is uitgevoerd met een grote zandkleurige vloer- en wandtegel in combinatie met een opvallende robuust betegelde muur. Voorts is de badkamer voorzien van een ruime inloopdouche met stort/handdouche en een infrarood en/of UV douchepaneel en een breed zwart houten wastafelmeubel met tweemaal een mat witte waskom en een ingebouwde zwarte kraan en een brede spiegelwand. Tenslotte is deze badkamer nog voorzien van een plafondhoge inbouwkast.

Aan de voorzijde ligt een tweede ruime kamer, thans in gebruik als leefruimte en voorzien van een charmante ronde deur naar een Frans balkon evenals openslaande deuren naar een rond balkon aan de Richard Wagnerstraat.

De naastgelegen derde slaapkamer is thans in gebruik als kledingkamer, het separate toilet bevindt zich naast laatstgenoemde kamer.

De beklede trap brengt u naar de tweede verdieping welke tevens is voorzien van een drietal kamers en een badkamer. Aan de achterzijde ligt de hoofdslaapkamer van deze woonlaag. Deze kamer is ruim van formaat, is voorzien van een dakkapel, een inbouwkastenwand, een extra inloopkast en toegang tot naastgelegen wasruimte (voorheen een badkamer). Buiten de twee inbouwkasten is er nog extra bergruimte te vinden onder de schuine wand.

Genoemde wasruimte voorziet in de benodigde aansluitingen, een wastafelmeubel en werkruimte.

De tweede slaapkamer ligt aan de voorzijde en heeft een dakkapel. Deze kamer met airconditioning is tevens voorzien van een inloopkast en beschikt over een en-suite badkamer. Deze badkamer is geheel wit/grijs van uitvoering en biedt een ligbad, inloopdouche, handdoekradiator, toilet en een hoogglans wit wastafelmeubel met twee wastafels en moderne RVS kranen.

Via de hal leidt de witte open trap naar de bovenste verdieping. Een kleine overloop geeft toegang tot deze ruime zolderkamer, momenteel in gebruik als gasten/speelkamer. De schuine kap aan weerszijden geeft deze kamer een charmant karakter. Met de drie aanwezige Velux ramen is dit een volwaardige (slaap)kamer.

Vanuit de begane grond is de ruime kelder van 49m² te bereiken. De hal alhier biedt toegang tot de twee ruimtes aanwezig; een ruime berging en een tweede berging met de c.v. opstelling, kastenwand en een inpandige kluis.

LIGGING & BEREIKBAARHEID
Dit herenhuis heeft een gunstige, centrale ligging, middenin de Diepenbrockbuurt. Op loopafstand treft u de gezellige Beethovenstraat met een divers aanbod aan exclusieve winkels en horeca gelegenheden. Naast de Beethovenstraat biedt ook de Stadionweg winkels voor de dagelijkse boodschappen evenals diverse speciaalzaken (o.a. Marqt en Le Fournil). De fameuze Cornelis Schuytstraat, de chique P.C. Hooftstraat en het Vondelpark zijn op fietsafstand gelegen. Recreëren, sporten of heerlijk wandelen kan in het groene Beatrixpark, nagenoeg naast de deur gelegen. Tevens zijn er diverse speeltuinen in de buurt te vinden. Openbaar vervoer, diverse uitvalswegen en zeer goed aangeschreven scholen (zowel basis- als voortgezet onderwijs) alsmede kinderopvang zijn in de directe omgeving te vinden. De British School en de Internationale School bevinden zich op fietsafstand.

BIJZONDERHEDEN
-Smaakvol, exceptioneel licht half vrijstaand woonhuis van totaal 316m²;
-GO wonen 266,50m² & overig inpandig 49,10m²;
-Gerenoveerd in 2018;
-Erfpacht eeuwigdurend afgekocht;
-Royale living v.v. wonderschone erker en elegante woonkeuken;
-Tuin 3 kwart rondom van ca. 175m²;
-Aangebouwde schuur van 5,70m²;
-Voortuin met parkeerplaats incl. elektrisch laden;
-Zeer beschut gelegen en veel privacy;
-Welgevormd trappenhuis met prachtige lichtinval;
-Airconditioning in twee slaapkamers;
-Luxe en-suite badkamer aan hoofdslaapkamer;
-Tweede badkamer aanwezig;
-Volwaardige zolder en ruime kelder;
-Gelegen in de hoogstaande Diepenbrockbuurt;
-Alle faciliteiten op loopafstand;
-In 2024 is de straat ruimtelijk heringericht;
-1 extra parkeervergunning te verkrijgen (naast de parkeerplaats op eigen terrein);
-Oplevering in overleg.

DISCLAIMER
Deze informatie is door ons met de nodige zorgvuldigheid samengesteld. Onzerzijds wordt echter geen enkele aansprakelijkheid aanvaard voor enige onvolledigheid, onjuistheid of anderszins, dan wel de gevolgen daarvan. Alle opgegeven maten en oppervlakten zijn indicatief. Koper heeft zijn eigen onderzoekplicht naar alle zaken die voor hem of haar van belang zijn. Met betrekking tot deze woning is de makelaar adviseur van verkoper. Wij adviseren u een deskundige (NVM-)makelaar in te schakelen die u begeleidt bij het aankoopproces. Indien u specifieke wensen heeft omtrent de woning, adviseren wij u deze tijdig kenbaar te maken aan uw aankopend makelaar en hiernaar zelfstandig onderzoek te (laten) doen. Indien u geen deskundige vertegenwoordiger inschakelt, acht u zich volgens de wet deskundig genoeg om alle zaken die van belang zijn te kunnen overzien. Van toepassing zijn de NVM voorwaarden.

NENCLAUSULE
De gebruiksoppervlakte is berekend conform de branche vastgestelde NEN 2580-norm. De oppervlakte kan derhalve afwijken van vergelijkbare panden en/of oude referenties. Dit heeft vooral te maken met deze (nieuwe) rekenmethode. Koper verklaart voldoende te zijn geïnformeerd over de hiervoor bedoelde normering. Verkoper en diens makelaar doen hun uiterste best de juiste oppervlakte en inhoud te berekenen aan de hand van eigen metingen en dit zoveel mogelijk te ondersteunen door het plaatsen van plattegronden met maatvoering. Mocht de maatvoering onverhoopt niet (volledig) overeenkomstig de normering zijn vastgesteld, wordt dit door koper aanvaard. Koper is voldoende in de gelegenheid gesteld de maatvoering zelf te (laten) controleren. Verschillen in de opgegeven maat en grootte geven geen der partijen enig recht, zo ook niet op aanpassing van de koopsom. Verkoper en diens makelaar aanvaarden geen enkele aansprakelijkheid in deze.

Plattegronden

Kenmerken

Overdracht

Prijs
€ 3.795.000 k.k.
Status
Verkocht
Oplevering
In overleg

Bouw

Soort woonhuis
Herenhuis, Hoekwoning
Soort bouw
Bestaande bouw
Bouwjaar
1939
Onderhoud binnen
Uitstekend
Onderhoud buiten
Uitstekend

Oppervlakten en inhoud

Woonoppervlakte
316m²
Perceeloppervlakte
303m²
Overig oppervlakte
6m²
Inhoud
1.030m³

Indeling

Aantal kamers
12
Aantal slaapkamers
8
Aantal badkamers
2
Aantal verdiepingen
5
Voorzieningen
Airconditioning, Alarminstallatie, Dakraam, Frans balkon, Mechanische ventilatie, Rookkanaal

Energie

Energielabel
C
Isolatie
Dubbel glas
Warm water
C.V.-ketel
Verwarming
C.V.-ketel, Vloerverwarming gedeeltelijk

Buitenruimte

Ligging
In woonwijk
Balkon
Ja
Tuin
Achtertuin, Voortuin, Zijtuin
Achtertuin
Zuidwest, 175m², 1000×1750cm
Schuur
Aangebouwd steen
Faciliteiten schuur
Voorzien van elektra

Garage

Locatie

[ { "address": "Diepenbrockstraat 19", "zipCode": "1077 VX", "city": "Amsterdam", "lat": 52.3466126, "lng": 4.8803023, "heading": 0, "pitch": 0 } ]

Contact opnemen

Uw bericht is naar ons verzonden. Wij nemen zo snel mogelijk contact met je op.

Sorry, we kunnen helaas niet met zekerheid vaststellen of je een mens of een geautomatiseerde bot/spammer bent. Hierdoor kunnen we het formulier dat je hebt ingevuld niet verzenden. Probeer het opnieuw of neem direct contact op met de makelaar via e-mail.

Er is iets mis gegaan met het versturen van het formulier.
Controleer of jeu alle velden (goed) heeft ingevoerd en probeer het nog een keer.

recaptcha
reCAPTCHA
PrivacyTerms

Vergelijkbare woningen

Amsterdam Aldengoor 2
€ 3.595.000 k.k.
Amsterdam Herengracht 553 H
€ 3.250.000 k.k.