Gustav Mahlerlaan 86 1082 ME Amsterdam
€ 1.195.000 k.k.

Asking price€ 1.195.000 k.k.
TypeUpper floor apartment
Surface174m²
Bedrooms3

Description

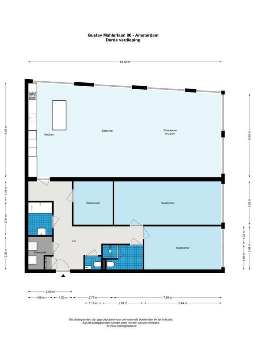
Exceptionally bright and modern four-foom apartment of 174m² (Gross Floor Area 186m²) featuring high ceilings, a spacious living area, three bedrooms, two bathrooms, and fantastic natural light. The apartment is located on the third floor of the luxurious “New Amsterdam” building in the Zuidas district and includes an elevator and a private storage unit in the basement.

“New Amsterdam” is part of the Mahler 4 project: a luxurious and elegant newly built complex designed by Architecten Cie. The complex is located in Zuidas, a modern urban residential and business district that has rapidly developed and offers a wide range of amenities. This prestigious complex is highly sustainable, exudes a New York feel, and is fully equipped with conveniences such as a large underground parking garage, a shared bicycle storage area, elevators, a Residential Health Club including an infinity pool, sauna, and gym, and a 24/7 concierge employed by the Homeowners' Association (VvE).

The VvE is professionally managed and has a multi-year maintenance plan (MJOP) and house rules in place. The total monthly service charges are €866 (apartment and storage).

LAYOUT
The impressive, light-filled communal entrance leads to the third floor via one of the elevators. A secured additional door gives access to the apartment's private entrance. The spacious hallway provides access to all rooms.

The stunning living area, stretching an impressive 13 meters, is located at the front and side of the building. With large windows on two sides, the space is exceptionally bright. The generous size allows for a spacious sitting and dining area, as well as a luxurious open-plan kitchen. The modern kitchen features white cabinetry, light-speckled natural stone countertops, and a full-height wall of built-in appliances. Additionally, there is a kitchen island with seating and extra storage. The kitchen is also equipped with a Quooker and a double-door fridge and freezer.

The two main bedrooms are situated on the Benjamin Brittenstraat side. The left-hand bedroom is particularly spacious, while the right-hand room is currently used as an office. The third bedroom is located in the center of the apartment.

The apartment features two well-appointed bathrooms, both with anthracite floor tiles and glass shower walls. The other walls are finished with white tiling.

Bathroom 1 includes a bathtub/shower combination, a white vanity unit with a stylish wooden countertop, and a beautiful vessel sink.

Bathroom 2 offers a large walk-in shower, wall-mounted toilet, and a sink.

In the hallway, you’ll also find a separate toilet and a large storage room with connections for a washing machine and dryer, as well as the ventilation unit (WTW).

From the central ground floor area, you have access to the high-end facilities and the storage rooms.

LOCATION & ACCESSIBILITY
This apartment is situated in the vibrant Amsterdam Zuidas—a prime location for living, working, and leisure with excellent infrastructure. It is just minutes from the A10 ring road, Amsterdam’s historic city center, and Schiphol Airport. Zuid/WTC Station provides tram, metro, bus, and train connections, with Schiphol only 6 minutes away by train.

Zuidas has rapidly evolved and now includes numerous restaurants, gyms, yoga studios, an urban food court, coffee bars, and more. The apartment is close to Beatrixpark, Amstelpark, and of course, the Amsterdam Forest (Amsterdamse Bos). Shopping is convenient with Gelderlandplein and Beethovenstraat nearby, and the Amstelveen City Center is also easily accessible.

HIGHLIGHTS
-Very spacious single-level apartment of 174m²;
-Luxury apartment complex “New Amsterdam” with concierge, gym, pool, and sauna;
-Impressive 13-meter-long living area with modern open kitchen;
-Three bedrooms, two bathrooms;
-Several international schools within walking distance;
-Parking available under the building (for rent);
-Ground lease paid off for the current period;
-Located in the prestigious Zuidas district;
-Various amenities within immediate reach;
-Professionally managed Homeowners' Association (VvE);
-Delivery in consultation.

DISCLAIMER
This information was composed by us with due care. However, we can accept no liability whatsoever for any inaccuracies, incomplete information or otherwise, nor for any loss or inconvenience that this may cause. All specified sizes and dimensions are indicative. Purchaser has his/her own obligation to investigate all matters which are important to him or her. Pertaining to this house, the broker-consultant is of the vendor. We advise you to make use of an expert (NVM) broker to guide you for the purchase process. If you have specific wishes regarding the house, then we recommend you to communicate these in a timely manner to your purchasing broker and to do an independent examination of these things. If you do not make use of an expert representative, then the law considers you enough of an expert to be able to have a good grasp of all matters which are of importance. The NVM conditions apply.

NEN CLAUSE
The usable surface area is calculated in accordance with the NEN 2580 standard determined by the industry. The surface area may therefore deviate from similar buildings and/or old references. This is mainly due to this (new) calculation method. The purchaser states to be sufficiently informed about the aforementioned standard. The vendor and the broker of the vendor do their very best to calculate the correct surface area and content on the basis of own measurements and to support this as much as possible by posting maps with dimensions. However, if the dimensions happen not to have been (completely) determined in accordance with the standard, then this is accepted by the purchaser. The purchaser has been sufficiently given the opportunity to check the dimensions. Differences in the indicated measurement and size do not provide any right to the parties, also do not the adjust the purchase price. The vendor and the broker of the vendor do not accept any liability in this matter.

Floor plans

Details

Transfer

Price
€ 1.195.000 k.k.
Status
Available
Acceptance
In consultation

Build

Apartment type
Upper floor apartment
Build type
Existing
Build year
2008
Maintenance inside
Good
Maintenance outside
Good

Surface and volume

Living surface
174m²
Volume
603m³

Layout

Rooms
4
Bedrooms
3
Bathrooms
2
Number of floors
1
Facilities
Lift, Mechanical ventilation

Energy

Energy label
A+
Isolation
Fully isolated
Hot water
Central supply
Heating
Block heating, Heat recovery installation

Exterior areas

Shed
Lock-up
Shed facilities
electricity

Garage

Location

[ { "address": "Gustav Mahlerlaan 86", "zipCode": "1082 ME", "city": "Amsterdam", "lat": 52.336925, "lng": 4.871458, "heading": 0, "pitch": 0 } ]

Contact us

The form has successfully been sent. We wil contact you as soon as possible.

Unfortunately we can not conclusively determine whether you are a human or an automated bot/spammer. Hence, we are unable to submit the form. Please retry or contact the real estate agent directly via email.

Something went wrong while sending the contact form. Check if you correctly filled in all required fields and try again.

recaptcha
reCAPTCHA
PrivacyTerms

Related houses

Amsterdam Van Tuyll van Serooskerkenweg 25 H
€ 975.000 k.k.
Amsterdam Pieter de Hoochstraat 21 B
€ 1.095.000 k.k.
Amsterdam Prinsengracht 286 D
€ 1.299.000 k.k.